本篇文章內容由[中國幕墻網]編輯部整理發布:


該項目客戶是一家開發公司,其在銀座購買了一塊追求已久的后巷場地,并計劃建造一個商業辦公用樓。這座樓坐落在銀座 1-chome Gaslight 街,這是銀座中央大街后面的一條街,位于中央大街瑞穗銀行 (Mizuho Bank) 和 POLA 銀座大樓的背面。

這里的氛圍與華麗的中央大街截然不同,該場地在一條空蕩蕩的街道上,這條街上看到的通常是大街上的大型建筑的背面。客戶希望這棟建筑能成為一個華麗的存在,吸引盡可能多的人進入這樣的街道。此外,設計師想要給路人一種“輕微的陌生感”,吸引他們進入到大樓里去。

考慮到室內空間的視野,簡單地用開窗來獲得開放似乎是徒勞的,因為外面的景色是令人絕望的。因此,我們采用了雙層表皮結構,由玻璃幕墻和圖形處理過的穿孔鋁板(詞條“鋁板”由行業大百科提供)組合而成。立面成為室內裝飾的一部分,并避免了窗簾或百葉窗等窗戶處理的需求,也減少了空調負荷和玻璃清潔的負擔。


設計師認為一個精心制作卻看似偶然的形狀可能將是一個不那么令人討厭的設計,于是為了避免產生任意的形狀并且將形狀近似于自然,這個不規則立面通過計算來設計。在附近街區,以水平和垂直或幾何形狀為主的現代主義建筑總給人一種陌生的感覺,有著特別的吸引力,并具有商業建筑的感染力。抽象的花卉圖形是用來平衡外觀給人們的印象,也就是把它從過于尖利中解放出來。


通過計算設計,單個穿孔鋁板具有不同的角度和形狀,但都符合一種標準尺寸,使其擁有杰出的的材料產量。為了避免立面過于沉重,需要一個非常輕的結構,因此設計師們需要非常謹慎地處理它的細節。彩色LED頂燈安裝在雙層表皮內,根據季節的不同,讓路過的的行人體驗到不同的節日。預期的租戶包括一家美容院和美容沙龍。




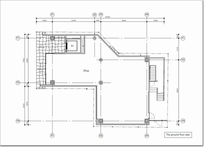
一層平面圖

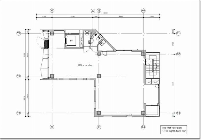
二層平面圖

立面圖
建筑師:amano design office
地址:東京,日本
合伙人:Atorie Oica , Azzurro Architects
建筑面積:155.55 平方米
項目年份:2013
攝影師:Nacasa & Partners Inc.