本篇文章內容由[中國幕墻網]編輯部整理發布:
                                                  某小區新建的這座樓房,
采用的“波譜型”造型設計,
外觀十分新穎獨特,
它們還有個好聽的名字叫做波普洋房。
遠遠望去,
這曲線,既高端又大氣!
設計感十足!

效果圖▲
一開始,小區居民也這樣認為。
但是,
當業主們真正入住后發現,
這個設計太“高端”陽臺不實用,
根本沒法封!

哈哈,這位業主說:
設計師可能是腦子進水了
設計師被甲方折磨還不夠?
還得接收業主的批評
業主什么會想到封陽臺呢?
原來項目地在濟南,當地風沙大,一般業主家里又有孩子,把陽臺封起來比較安全,可是看著這不規則的陽臺,不知道該如何下手。


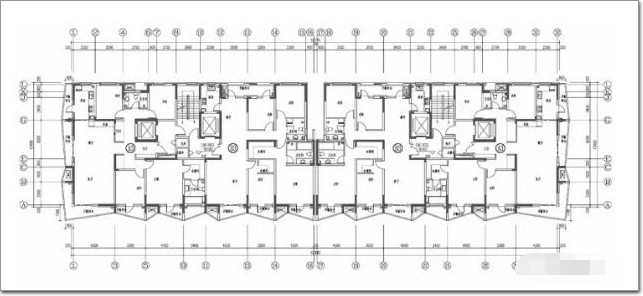
平面圖 ▲
約174㎡ 四室兩廳兩衛

不規則的陽臺設計想要封擋非常困難,
因為目標地點在北方,
這種陽臺設計存在眾多漏洞,
環境方面風沙較大,
安全方面極易攀爬還存在高空墜物等方面的問題。


  每一戶的陽臺外側都只有鏤空的一米多高的護欄,除此之外再無保護。
  這三棟樓上下層的陽臺是左凸右凹,交錯而建,上下不對稱。
  具體到單獨一戶陽臺來看,陽臺的頂部和地面都是梯形,只不過地面短的一邊對應的是房頂長的一邊,整個都是擰著的。


正在改造的陽臺 ▲
  三分之一的陽臺已經被封上了,其中一部分選擇沿原有外墻封閉;但也有很多業主對造型奇特的陽臺自行改造:有的砸了墻在外面搭起了鋼架;有的超出外墻進行擴建;甚至有的陽臺已經懸空。

正在改造的陽臺 ▲
  有的樓的高層住戶封閉陽臺,工字鋼從十幾層樓陽臺上方開始打,也就是說高層飛架著懸空陽臺。
  除了工字鋼,還有業主是采用了方形鋼管,或者是直接用斷橋鋁門窗,在上方露出一角或一個面,確實是五花八門。


正在改造的陽臺
  工人改造的土辦法:施工的時候會先安裝工字鋼,然后再裝上承重板,承重板上綁上鋼筋,在陽臺墻上打眼之后,把鋼筋穿進去,再澆筑,就這樣把加建的部分和樓板(詞條“樓板”由行業大百科提供)連在一起。
  也不知道這樣改造開發商和設計師看到是什么感覺……

架工字鋼架破壞了墻體

從外觀看,
三棟樓已不像初次看到時那樣“洋氣”,
各種不同的陽臺封閉模式
讓這三棟樓不像是剛交房的新建筑。

視頻(濟南新聞綜合電視臺)
  看看網友的評論:
  1、房子首要的功能是生活居住,然后才考慮外觀……像這種完全不考慮北方氣候環境特點,光賣弄自己靈感的所謂“設計”,那簡直就是閉門造車,典型的脫離實際的腦殘行為……居然還有包括博主在內的一眾沙幣替設計師洗地?罵業主腦子進水?北方的房子不封陽臺你們進去住幾個月試試看?
  2、陽臺分全封閉式陽臺,半封閉式陽臺,露臺是不可以計算建筑面積的我不知道開發商怎么收的你錢,你怎么不去告他,多學點房地產知識再買房,還有你買之前不知道是這種設計么?置業顧問沒跟你說么?沙盤模型你看不懂么?
  3、明明是開發商和建筑師腦子進水,居然怪業主,這垃圾設計讓業主怎么過冬,審美比活著還重要么。
  4、開發商大概也覺得自己很委屈,平時都罵我是臭奸商唯利是圖,如今追求把藝術,還得挨業主罵~~
  5、這個方案大概率是南方設計院干的,本地院施工圖,而且這個事開發商責任最大,陽光100在濟南都多少年了,市場需求自己沒數么,要么統一不準封,要么就設計嚴格把關,要么就統一出封陽臺方案,現在這樣,我覺得就是開發商的鍋
  6、海邊的第二居所用這個立面還是合適的。北方的都市樓盤用這個立面確實是腦子進水了
無獨有偶
奇葩陽臺設計還有
在四川省成都市新世紀會展中心,
很高的一棟樓房
無論是造型還是顏色
在旁邊的其他樓房中特別突出
它的陽臺設計為三角菱柱體,
一眼望過去眼花繚亂,
很吸引眼球。

歪歪扭扭的陽臺設計,簡直跟迷宮一樣!
近看一個個凸起的陽臺,對強迫癥簡直就是折磨!

也有業主說,這種設計采光非常好
還有網友吐槽這樣帶斜角的陽臺或房間很不好用
家具很難擺,空間利用率低
另外從樓上的陽臺可以輕松翻到樓下的陽臺里
非常不安全!

是有追求的開發商錯了?
還是設計師腦子進水了?
