【中國幕墻網】
一、建筑幕墻構造設計
  1.幕墻防火隔煙設計  根據《
玻璃幕墻工程技術規范》4.4.7內容:玻璃幕墻與周邊防火分隔
構件間的縫隙、
樓板或
隔墻外沿間的縫隙、與實體墻面洞口邊緣間的縫隙等,應進行
防火封堵設計。
  在實際幕墻設計中,有些設計師在進行防火隔煙封堵設計時不是很合理,以至于與業主、監理或審圖中心常常會產生一些技術上的摩擦。現就關于此項設計需要注意事項列舉如下。
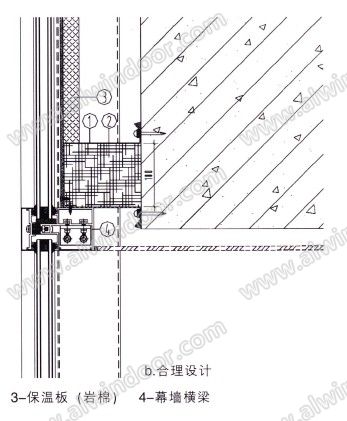
  (1)幕墻
主體結構樓層梁處的水平防火封堵
  建筑幕墻處主體結構樓層梁處的水平防火封堵層應盡量接近玻璃面,不能只封到幕墻
橫梁的背部,橫梁上力的防火
巖棉隔離層厚度應滿足大于等于100mm的要求;樓層間水平防煙帶的巖棉宜采用厚度不小于1.5mm厚的
鍍鋅鋼板承托。同時,如果縱向采用易燃物
保溫板如
擠塑聚苯板,則
保溫板應設置在防火隔離層的上方(如圖1)。


  (2)幕墻橫梁與主體結構洞口處的防火封堵
  在幕墻設計中,玻璃幕墻橫梁與主體結構洞口處的防火封堵往往被忽視,有的設計師在繪圖時沒有重視,甚至沒有設置防火隔離。按規范要求,幕墻橫梁與主體結構洞口處的防火封堵層厚度也不應小于100mm。
  (3)幕墻
立柱與主體結構周邊縱向防火、防煙封堵玻璃幕墻立柱與主體結構洞口周邊縱向防火、防煙封堵厚度隔離層的
截面尺寸也不宜太小,最好不小于100mm,否則不合規范要求。
  幕墻設計中,防火、隔煙設計一定要引起重視,近來,國家對防火規范方面要求比較嚴格。同時,在設計主體結構樓層梁處的水平防火封堵時要注意不是把板后面的空間全部填滿防火巖棉,而是在100mm厚度的防火巖棉隔離層范圍內不留空隙就行了。  
2.幕墻防雷防靜電設計  幕墻系統的防雷利防靜電設計是確保幕墻工程的安全設計。良好的防雷和防靜電性能可確保幕墻不遭雷擊或因靜電失火利影響整個建筑室內電器
設備的正常使用。由手在幕墻系統中多處因
防腐、防燥等原因設置了
PVC裝置,致使建筑物防雷裝置不能直接起到接閃利防雷作用。這樣,閃電對建筑的雷擊往往也就變成了閃電對玻璃(金屬)幕墻的雷擊。
  幕墻作為一種復合系統,局部采用了大量金屬構件,幕墻的金屬材質由于雷電的效應,將會產生靜電感應作用。當天空中的云由于摩擦或碰撞產生雷電利大地形成電場時,幕墻的金屬
桿件就會積聚大量的
感應電荷,且這種感應電荷與雷云極性相反;當雷云瞬間放電后,云與大地的電場突然消失,這時幕墻的金屬桿件感應電荷不能以相應的速度流散,將會產生高達萬伏以上的對地電位,這種靜電感應電壓對人利設備產生危害。所以,必須消除靜電對幕墻的影響。
  按照規范要求,在
建筑標高30mm以上,幕墻必須采取防雷措施。目前,防雷的通常做法是幕墻位于
均壓環處的
預埋件的鈾筋(或者鈾板)必須與土建均壓環電焊連接;且10m以內宜自一根立柱采用柔性導線上下連通,形成等電位,再與土建防雷系統連通(如圖2)。


  3.玻璃采光頂設計
  隨著建筑幕墻的快速發展利對周邊環境及采光效果的需要,采光頂的使用及設計也越來越廣泛。但傳統采光頂構造方式很容易出現膠縫
滲水及內部
結露等現象,會給建筑本身及使用者帶來一定的負面效果。本人結合多年來的幕墻設計經驗及施工現場體會,總結了—定的采光頂設計力法,可供設計師們參考。
  (1)
玻璃采光頂設計時,在
型材上要注意選擇,傳統的設計一般沒有考慮型材的二次
防水措施,這樣會導致膠縫
滲漏水及冷凝水沒有自效地排放,造成采光頂設計不完善漏水的現象。基于多方面的考慮,我司在采光頂設計時,采用了統—的配套型材,使采光頂設計完善的同時,也注重了二次
排水措施,有效地避免了滲水及漏水現象(如圖3)。

  (2)采光頂設計在考慮型材二次排水的同時,也要注意
面板的分格尺寸。采光頂必須采用夾膠
安全玻璃,劃采用點
支承結構,面板分格尺寸不宜大于1.6m×1.6m。如果分格板塊過大,容易產生較大的
撓度,造成局部積水現象;同時面板過大也不利于后期的維護,如果玻璃自爆或其他原因產生
破裂對后期的更換會帶來一定程度的難度(如圖4)。

  由圖中可以看出,在實際工程中由于
玻璃板塊較大產生一定的撓度,造成雨水無法排出,產生積水,如此時間久了,就會使雨水通過膠縫滲漏到空內。 
 二、建筑幕墻結構設計  結構設計是幕墻設計中的一個重要方面。幕墻是建筑物的外
圍護結構,主要承受自身的重力
荷載,以及作用在其上的
風荷載、
地震作用利
溫度作用。  
1.幕墻的支承結構支承  結構是建筑幕墻重要的組成部分,它能把幕墻表面承受的風荷載、溫度差作用、自身重量利
地震荷載傳給主體結構。因此,支承結構必須有足夠的
強度和
剛度。它相對于主體結構自特殊的獨立性,又是整體建筑不可分離的一部分。支承結構既要與主體結構有可靠的連接,又不承擔主體結構因產生位移位
變形對幕墻產生的附和作用。由于幕墻是可以拆換的維護結構,所以其結構
設計使用年限不宜低于25年。
  在幕墻支承結構設計中,立柱的上、下柱連接算是最普通的結構設計了。
JGJ102-2003.6.3.3中關于上、下柱連接閉□型材可采用長度不小于250mm的
芯柱連接。
  此頂要求主要是對
鋁型材而言,如果立柱是鋼
龍骨,上下柱連接也可以用
鋼板連接,前提是上、下柱位移一致就可以了。如果幕墻立柱是雙跨梁結構模型,長短跨之比不應小于l/10,目前有些審圖中心的審查員把長短跨比控制在0.15,如果層間結構梁高度不足,則
跨距比很難達到0.15的比例,這個問題后期可以與檢查人員溝通解決。  
2.幕墻后錨固處理  幕墻后鈾固處理主要體現在鈾栓形式上的選用,目前較普遍的鈾栓選擇上主要自化學鈾栓與金屬膨脹鈾栓。兩種鈾栓目前尚不能說哪種好哪種不好,只能說它們承載原理自些區別。化學鈾栓因無膨脹
應力的鈾固可以實現較小的邊間距,其鈾固原理主要是化學
粘結力及鎖鍵力來承受外界荷載;膨脹鈾栓主要是通過膨脹片與
混凝土間的摩擦力或對混凝土的壓力,產生
承載能力來承受外界拉力荷載。不論哪種鈾栓,其
承載力設計值不應大于其極限承載力的50%,且不宜在與化學鈾栓接觸的
連接件上進行
焊接操作。 (注:部分內容來自于喜利得交流會資料)。
上一頁12下一頁